Нужен дизайн интерьера?
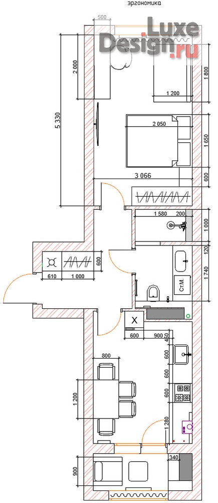
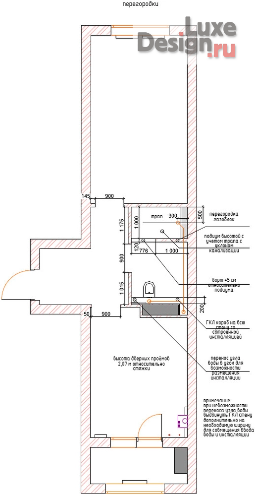
Особенностью разработки данной квартиры было объединение санузлов с устройством полноценной душевой.
Кухонную зону реализовали, учитывая существующее расположение котла с учетом того, что он остаётся открытым.
На кухне и лоджии расставлены темно оливковые акценты в мебели и настенных рейках.
В спальне было важно разместить 2 спальную кровать с переходом в шкаф и небольшим раскладным диваном у окна.










Визуализация проекта
Стиль интерьера:
Минимализм
Работа дизайнера:
Литвинов Алексей Геннадьевич
Дизайн интерьера квартиры в современном стиле с объединённым санузлом.