Нужен дизайн интерьера?
Заказчики: технологическая компания
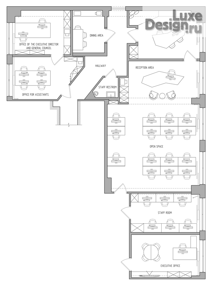
Местоположение: г. Москва
Тип помещения: офисное пространство
Площадь проекта: 136 кв.м.
Описание проекта: Дизайн-проект офисного пространства для технологической компании.
Продукция и решения данной компании представлены в разных странах, а акцент сосредоточен на инженерной точности и качестве исполнения.





























Визуализация проекта
Стиль интерьера:
Современный стиль
Работа дизайнера:
Юров Денис Игоревич (студия Yurov Interiors)