Нужен дизайн интерьера?
Ко мне обратились молодые ребята с вопросом переделки комнаты и коридора. Заказчики никак не могли сформировать представления как удобно расставить мебель, каким они хотят видеть свой интерьер, тем более на переделку всей квартиры они были не готовы.
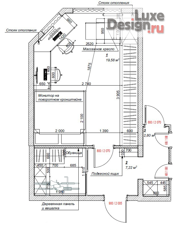
Коридор мы немного переделали, там была кладовка, которая им казалась абсолютно неудобной и маленькой. Вещи там хранились, но не на своих местах, а "как получилось". Так же у хозяев квартиры имеются 2 велосипеда, которые хотелось бы убрать, но в кладовую они никак не влезали. Поэтому было принято решение убрать стены (благо по проекту это было дозволено, так как они были просто "картонные" и на бти не значились). Я предложила им вариант полуоткрытой гардеробной, с хранением вещей на полках и за фасадами, там же расположили и электрощиток, по глубине гардеробная подходит для того, чтобы спрятать велосипеды.
Коридор в этой квартире делится на 2 части, у входов в сан.узлы мы расположили шкаф на металлическом основании, которое выполняет функцию ниши для робот-пылесоса и рядом стайлер для одежды.
В спальне нам предстояло найти место для массажного кресла, которое заказчикам подарили на свадьбу. Его габариты не маленькие и необходимо пространство ЗА креслом, чтобы оно раскладывалось. Мы вписали его в нишу шкафа. Шкаф - это отдельная "любовь" хозяйки квартиры. Он получился очень вместительный и визуально практически не занимает место. Его мы сделали до потолка, а к фальшь-панели подвели "парящий" потолок, что визуально сливает шкаф со стеной. Для расширения визуального пространства мы выбрали вариант фрески с изображением леса. Так же особенностью данного интерьера является наличие двойного рабочего стола, повторяющего изгиб стены. Супруги часто вместе сидят за компьютером, поэтому такой стол на заказ по моим чертежам стал для них одним из любимых решений для интерьера.
Так как квартира является однокомнатной и спальня выполняет функцию гостиной, было предложено один из мониторов повесить на поворотный кронштейн, чтобы можно было использовать его в качестве телевизора. В последствии заказчики установили туда смарт-тв.







Стиль интерьера:
Современный стиль
Работа дизайнера:
Уварова Оксана Александровна