Нужен дизайн интерьера?
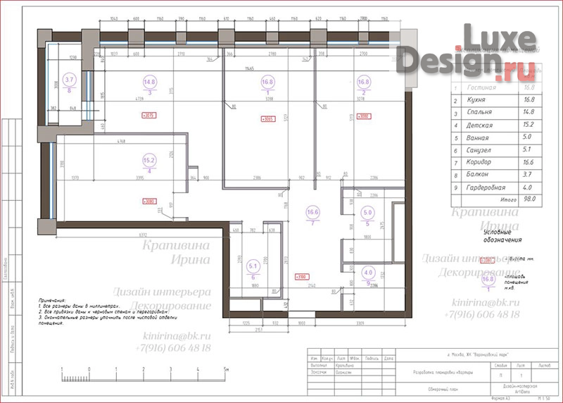
Проект квартиры площадью около 100 кв.м. создавался для семьи с двумя взрослыми сыновьями.
Главной задачей было изменить планировку под запросы семьи. Нужна была просторная гостиная для приёма гостей и с зоной отдыха.
Большая площадь окон не позволяла свободно изменять перегородки, поэтому пошли другим путём - избавились от протяжённого извилистого коридора и за счёт этого увеличили размеры гостиной и открыли пространство.
Также запланировали стеклянную перегородку между кухней и гостиной.
Это позволяет трансформировать пространство между кухней и гостиной по-разному.
Цветовая палитра выбрана светлая с тёмными акцентами в мебели и стеклянной перегородке. Это было основное пожелание хозяйки.
В отделке квартиры запланировано использование только натуральных и экологичных отделочных материалов.
На полу - мрамор, дерево и керамогранит. На стенах - раскладка тонких молдингов, необычные обои из шпона дерева и краска на водной основе.
Интересные решения использовали при проектировании потолка, чтобы скрыть систему труб вентиляции и подчеркнуть стилистику Ар Деко.
Стиль подчёркивают геометрические орнаменты напольных покрытий и сдержанная цветовая гамма.
Американская мебель и светильники с тёплыми латунными деталями добавляют в интерьер роскоши и тепла.














